Propuestas equipamiento zona deportiva Yebra

Durante este año 2025 se quiere finalizar el pabellón polideportivo y plantear la urbanización de la zona exterior.

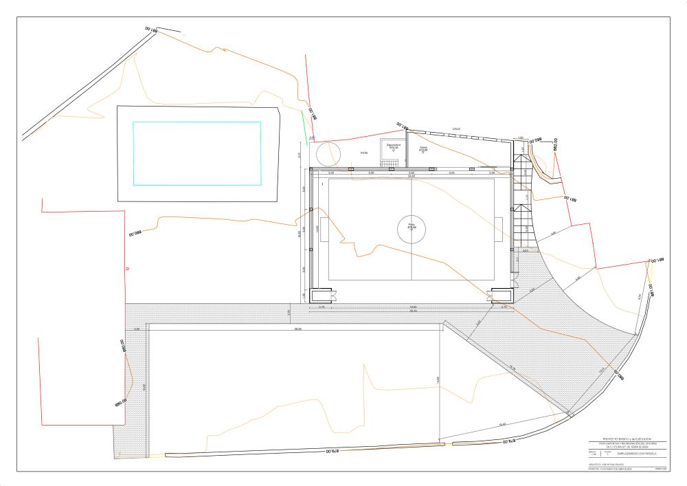
Se quiere hacer un acceso al edificio desde la rotonda de la calle que esté pavimentado y una acera en la parte delantera (zona marca en gris en el plano) y conectar con la calle Rio Basa mediante una escalera.

Con esta actuación, en la zona entre la piscina y la pista deportiva y la calle Ballibasa, queda una franja de terreno en la que se pueden instalar diferentes equipamientos.

Para conocer opiniones acerca de los posibles usos y equipamientos que se pueden instalar en este terreno, se expone a los vecinos el plano resultante del espacio disponible, que incluye mediciones, para que hasta el 15 de abril de 2025 puedan proponer las opciones que consideren que se deberían instalar en este espacio.

Las propuestas, se pueden registrar en la Sede electrónica, enviar al email ayuntamiento@yebradebasa.es, entregar en papel en horario de oficina o dejarlas en el buzón municipal.